Thông số của MG loại 50t đôi dầm móc giàn cần cẩu
MG loại đôi dầm móc giàn cần cẩu thuộc về đôi dầm chính chung giàn cần cẩu, còn được gọi là 50 tấn đôi dầm giàn cần cẩu. Nó bao gồm một cây cầu, cơ chế vận hành cần cẩu, xe đẩy, thiết bị điện và các thành phần khác. Cổng trục 50t này được thiết kế và sản xuất theo GB/T14406-1993 “Cổng trục chung”. Công suất nâng là 50t, môi trường làm việc là -20~+40 ℃, có hai cấp độ làm việc A5 và A6.
Thông số kỹ thuật của cần cẩu giàn đa năng 50 tấn
- Đặc điểm kỹ thuật của MG loại đôi dầm móc giàn cần cẩu: 50T/10T vv;
- Khoảng cách: 13M, 15M, 17M, 18M, 19M, 20M, 22M, 23M, 30M, v.v.
- Chiều cao nâng: 6M, 9M, 12M, 16M, 24M, 30M, v.v.
- Cần cẩu tùy chỉnh cũng có thể được thiết kế và tùy chỉnh theo nhu cầu của người dùng.

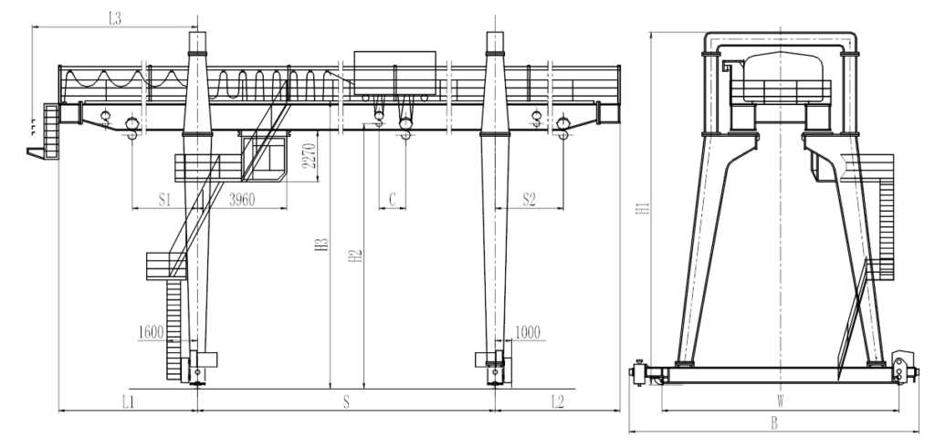
Bản vẽ cấu trúc của cần cẩu giàn đa năng 50 tấn

Bảng kích thước tổng thể 50 tấn Cổng trục phổ quát
| 起重量Cap(t) | 50/10 | |||||
| 工作制度Duty | A5 | |||||
| 跨度Span(m) | 18 | 22 | 26 | 30 | ||
| 最大起升高度(m) Max.Lifting Height | Main hook | 10 | ||||
| Auxiliary hook | 11 | |||||
| 速度(m/min) Speed | 起升 Hoisting | Main hook | 6.66 | |||
| 起升 Hoisting | Auxiliary hook | 13.2 | ||||
| Trolley running | 38.5 | |||||
| Crane running | 37.6 | |||||
| 电动机型号 Motor | 起升Hoisting | Main hook | YZR315S-10/55 | |||
| Auxiliary hook | YZR225M-6/30 | |||||
| Trolley running | YZR160M2-6/7.5 | |||||
| Crane running | YZR160L-8/4X7.5 | YZR180L-8/4X11 | ||||
| 主要尺寸 (mm)Main Dimension | S1 | 4900 | 5900 | 6900 | 7900 | |
| S2 | 5200 | 6200 | 7200 | 8200 | ||
| C | 1071 | |||||
| L | 32000 | 38000 | 46000 | 52500 | ||
| L1 | 7000 | 8000 | 9000 | 10000 | ||
| L2 | 7000 | 8000 | 9000 | 10000 | ||
| L3 | 6403 | 7403 | 8403 | 9403 | ||
| H1 | 15064 | 15068 | 15170 | 15172 | ||
| H2 | 10180 | 10184 | 10286 | 10288 | ||
| H3 | 12284 | 12288 | 12390 | 12392 | ||
| W | 8000 | |||||
| B | 10658 | |||||
| 重量(t)weight | 小车重量 Trolley weight | 13.6 | ||||
| 起重机总重 Total weight | 106 | 120 | 129 | 135 | ||
| 最大轮压(KN) Max.Wheel loading | 286 | 305 | 322 | 340 | ||
| 荐用钢轨(Kg/m) Recommended rails | 43,50,QU80 | |||||
| 电源Power Supply | 3AC 380V 50HZ | |||||
